DM home s.r.o.
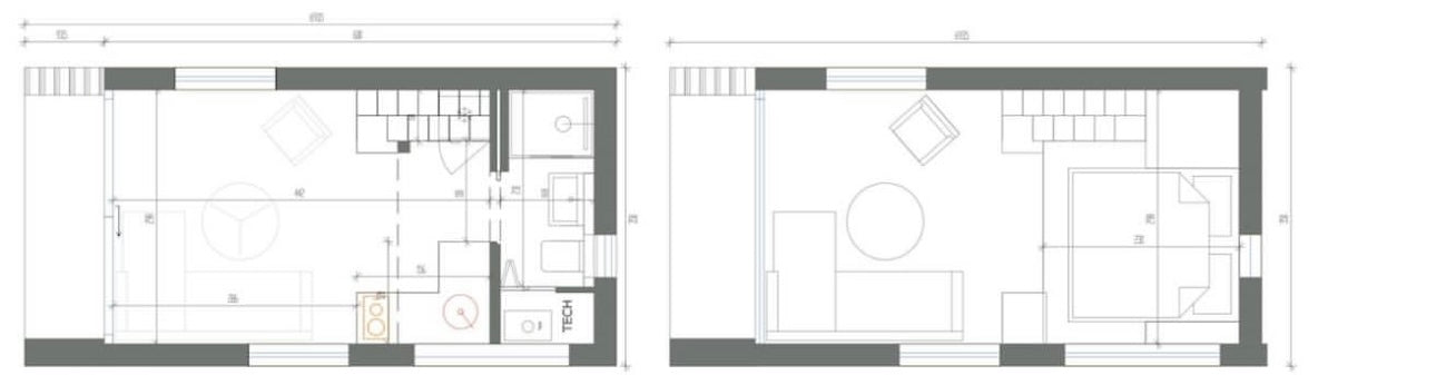
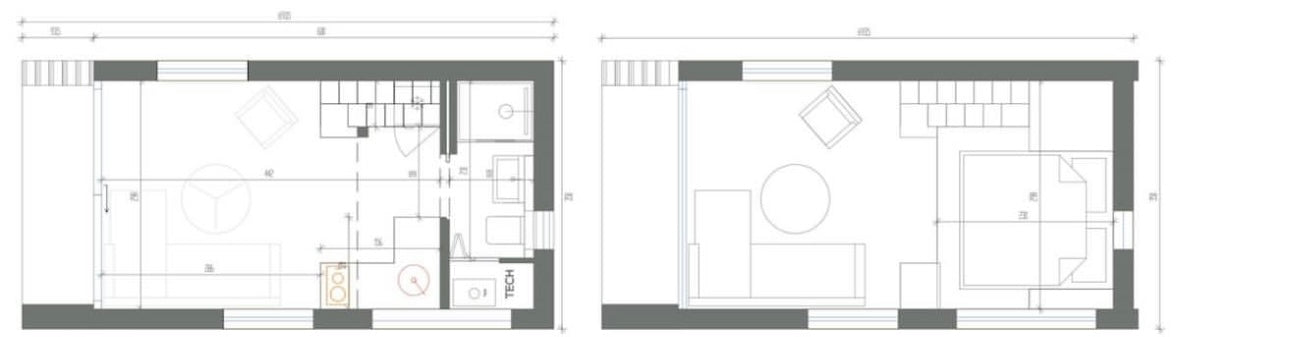
AQUA - 24M2
AQUA - 24M2
Hlavní parametry:
-
Celková plocha: 24 m²
-
Rozměry domu: 7 × 3,5 m
-
Cena: OD 1 290 000 KČ
Cena od představuje precizně zpracovaný základ vašeho modulového domu. Zahrnuje kompletní a funkční stavbu s mnoha dokončenými prvky. Veškeré individuální úpravy a prémiové doplňky s vámi detailně probereme v rámci klientských specifikací a transparentně naceníme.
CO JE ZAHRNUTO V ZÁKLADNÍ CENĚ?
-
Kompletní montáž domu na vašem pozemku.
-
Exteriér:
1) Kvalitní exteriérové dveře/okna
2) Venkovní obložení : A) Skandinávský smrk(za příplatek je možné vybrat jiný druh dřeva), B) Hliník
-
Interiér:
-
Vnitřní stěny: Sádrokarton nebo dřevěné obložení.
-
Moderní elektrické podlahové topení.
-
Kvalitní plovoucí podlahy.
-
Stylové interiérové dveře.
-
Moderní a energeticky efektivní elektrické podlahové topení s nezávislým termostatem v každé místnosti a možností ovládání přes mobilní aplikaci
PROČ KOUPELNA A KUCHYNĚ NEJSOU V ZÁKLADNÍ CENĚ? DŮRAZ NA VAŠI INDIVIDUALITU A NEJVYŠŠÍ KVALITU.
Naším cílem je dům, který dokonale splňuje vaše představy. Proto u klíčových místností volíme individuální přístup:
Koupelna: Ve spolupráci se SIKO Koupelny.
-
Garantujeme nejvyšší kvalitu vybavení a výhodnější ceny.
-
Vyberete si přesně to, co se vám líbí a vyhovuje vašemu stylu.
-
Detailní nacenění na základě vašich přání vznikne v klientských specifikacích.
-
Interiérové vybavení na míru: Design a kvalita od našich partnerů.
Kuchyně na míru:
-
Od ověřeného truhláře z vysoce kvalitních materiálů s precizním zpracováním.
-
Navrženo a vyrobeno přesně podle vašich speciálních požadavků a představ.
Nábytek na míru:
-
Náš truhlář vytvoří jakýkoliv nábytek na míru (skříně, knihovny, apod.).
-
Vše probíhá s detailními vizualizacemi před výrobou.
Kompletní interiérový design:
-
Možnost návrhu celého interiéru včetně vybavení s naší interiérovou designérkou.
-
Designér vybere nábytek a doplňky dle vašich preferencí a cenového rozpětí, včetně vizualizací.
Protože naše domy vyrábíme přímo v naší vlastní výrobní hale, jsme schopni flexibilně a individuálně reagovat na vaše požadavky a upravit dům přesně podle vašich představ.
KLIENTSKÉ SPECIFIKACE A DODATEČNÉ SLUŽBY
Všechny detaily vašeho budoucího domu ladíme společně v klientských specifikacích po podepsaní rezervační smlouvy tak, abyste získali domov přesně podle vašich představ.
Co lze řešit nad rámec ceny domu (klientské změny):
-
Individuální úpravy interiéru i exteriéru
(volba materiálů, velikostí, dispozic, doplňků) -
Příprava na kamna/krb
-
Záměna elektrického podlahového topení za tepelné čerpadlo
(včetně varianty 2v1 – topení + klimatizace) -
Samostatná klimatizace
-
Úpravy oken a dveří
(změna velikostí, typů, orientace domu, zrcadlení dispozice) -
Individuální rozmístění a situování domu na pozemku
SLUŽBY A POLOŽKY, KTERÉ NEJSOU ZAHRNUTY V CENĚ DOMU (HRAZENÉ JAKO PŘÍPLATKOVÉ)
-
Základy pod dům / základová deska
(možno zajistit na vyžádání – spolupracujeme s ověřenou subdodávkou)
Zákazník si může zajistit vlastní firmu na základě projektové dokumentace. -
-
Okapové žlaby – Realizujeme my
-
Kuchyňská linka a koupelna – Zajišťujeme ve spolupráci s naším truhlářem a koupelnovou firmou SIKO
-
Revize elektroinstalace – Zajišťuje si klient
-
Příprava na hromosvod a samotný hromosvod – Realizujeme my
-
Projektová dokumentace - Kompletní projekt, technická studie a veškeré podklady potřebné pro stavební řízení; řeší se s naším architektem/projektantem)
Po podpisu rezervační smlouvy vás propojujeme s projektantem.
-
Orientační cena projektu je cca 100 000 Kč
-
V případě zájmu jsme schopni vyřídit také kompletní stavební povolení včetně veškeré potřebné dokumentace.
TECHNICKÉ INFORMACE:
Skladba obvodové stěnové konstrukce (od vnitřní strany):
- 2× SDK deska 12,5 mm
- Parozábrana 110 g/m²
- Tepelná izolace 80 mm
- Nosný ocelový skelet
- OSB deska 12 mm
- Ocelové Z profily 50×50×50
- Expandovaný polystyren (EPS 70F) 50 mm
- Třívrstvá difuzně otevřená paropropustná fólie
Skladba střešního pláště (od vnitřní strany):
- 2× SDK deska 12,5 mm
- Parozábrana 110 g/m²
- Tepelná izolace 2× 80 mm
- Nosný ocelový skelet
- OSB deska 12 mm
- Ocelové Z profily 50×50×50
- Expandovaný polystyren (EPS 100 S) 50 mm
- Třívrstvá difuzně otevřená paropropustná fólie
Skladba podlahové konstrukce (od vnitřní strany):
- OSB deska 12 mm
- Parozábrana 110 g/m²
- Expandovaný polystyren (EPS 100 S) 100 mm
- Cetris deska (cementotřísková) tl. 18 mm
- Třívrstvá difuzně otevřená paropropustná fólie
- Systém příhradových ocelových nosníků / základ z válcované oceli
